- [2025/9/30]
- ◎駐車場空きのお知らせ 鳥屋野駐車場
- [2025/9/22]
- ◎店舗・事務所物件更新しました コープ野村万代102 C&Lビル 2階 中央ビルディング 4階 中央ビルディング 6階
コープ野村万代
階数 | 面積 | 賃料 | 共益費/管理費 | 敷金 | 礼金 |
---|---|---|---|---|---|
1 | 112.35㎡ | 672,804円 | 48,591円 | 5,000,000円 |

コメント万代シテイエリアに位置し、ガルベストン通に面している視認性の高い路面店舗物件です!!
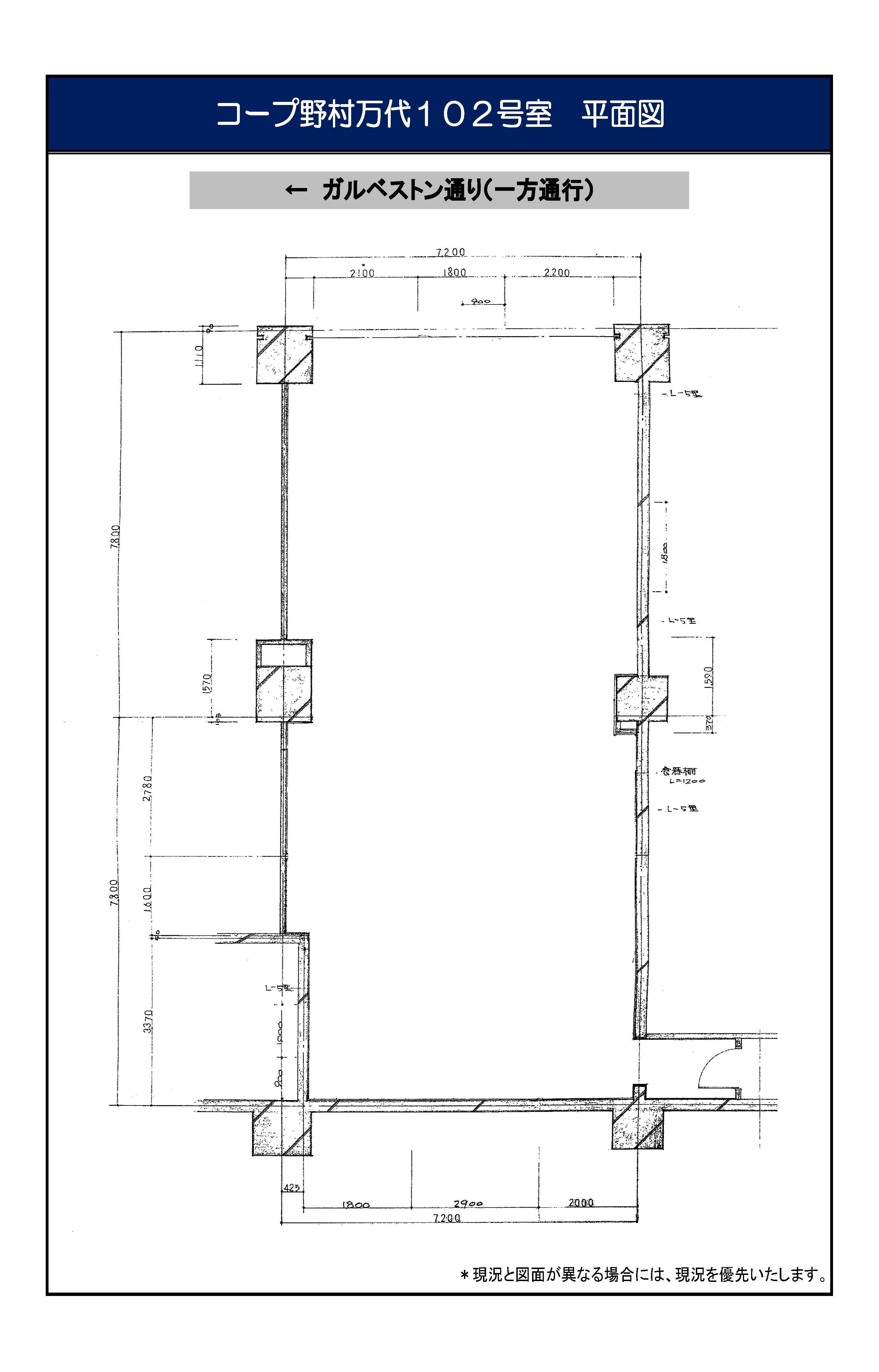
コープ野村万代 物件概要
所在地 | 新潟県新潟市中央区万代一丁目2番3号 |
---|---|
交通 | JR白新線「新潟」駅より徒歩7分 |
構造・規模 | SRC |
種別 | 店舗(建物一部) |
部屋番号/階数/階建 | 102 / 1 / 地上14階 |
面積 | 112.35㎡ |
面積/坪 | 33.98坪 |
現況/入居時期 | 相談 |
取引態様 | 一般媒介 |
状態 | 空き |
物件番号 | GK-074 |
設備 | スケルトン |
備考 | ●スケルトン渡しの路面店舗物件です。 ●1・2階が事業用区画、3階以上はマンションになっております。 ●業種業態はご相談ください。(飲食店は要協議) ●営業時間制限あり:7:00~22:00の範囲にてお願いいたします。 ●マンション内管理規則あり |
株式会社ワース新潟まで、お気軽にお問合せ下さい
025-245-5301
営業時間 9:00~17:30 (定休:土曜・日曜・祝日)
メールでのお問合せ
物件お問合せ
条件に近い物件